top
about
clients
トップページ
サービスのご案内
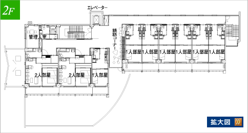
設備概要
ご入居条件・費用
●お問い合わせお申し込みは
TEL.026-275-0073
長野県千曲市大字磯部1047-1